手机登录
今天分享的是一套建筑面积64平米的现代风小户型单身公寓案例,整个家大面积的运用了温馨的配色方案,整体的布置也是干净利落,来展现屋主对于生活的追求。房子虽然不算很大,但一个人居住,还是挺宽敞的。
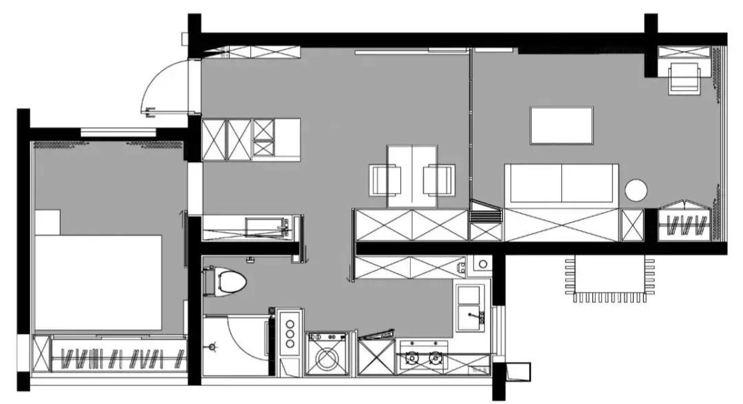
平面布置图 走过入户的玄关走廊,就到了餐厅空间,设计师在餐厅侧方做上嵌入式的餐边柜,中间部分留空加上镜面,看起来更加时尚。厨房和卫生间之间,还有嵌入式的洗衣机设计。 为了保证一定的隐私性,设计师在客餐厅中间加上折叠门的设计,让客厅也能变成成为次卧。整个墙面都铺上了木饰面板,看起来简洁又大方。 整个客厅的面积并不宽敞,所以设计师把阳台也包进了客厅内,客厅的电视柜做了悬空的设计,底部留空的地方还可以摆放一些收纳盒,增强收纳能力。 米灰色的双人沙发搭配迷你小茶几,在边几上摆放一个小鸟饰件,再加上沙发背景墙上的简洁挂画,整个空间给人一种简单轻松的感觉。 客厅外的这个小阳台,被改成了小书房,利用一侧做上书桌,另一侧做到顶的柜子,这样既方便屋主在家处理一些工作上的事情,又提示了小户型的收纳能力。 厨房整体也是做了原木风的设计,看起来更加温馨。厨房内部做了U字型的橱柜布局方案,再加上操作台和角落的收纳设计,让厨房拥有更多的储物空间。 卧室内同样也是以木色为主,嵌入式的衣柜搭配角落的搁架,满足屋主不同的收纳需求。设计师把灯光藏进了吊顶当中,用灯带和筒灯来代替吊灯,看起来更加简洁。 从床上延伸出一小块的隔板来代替床头柜,简洁而又实用。拼色的硬包床头背景墙上有着金属飞燕的装饰,是齐家小菜非常喜欢的造型。 卫生间的干区被放在了卧室的门外,镜柜加上台上盆,搭配大理石质感的台面,让人感觉非常时尚。把洗手台移出卫生间,也能避免卫生间太过拥挤。










